/ BARCA I
promotor
JERÓNIMO CAMARINHA.
local
ARRÁBIDA SHOPPING, V. N. DE GAIA
data
1996.
CONSTRUÍDO.
+
DESENHOS TÉCNICOS
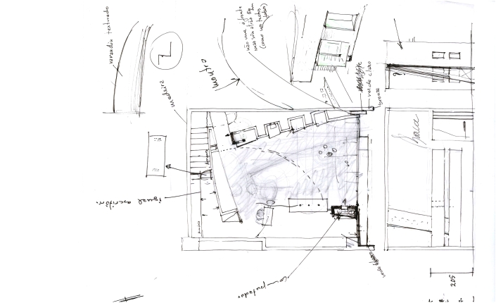
/ Desenho Interior
#Barca I
#Barca II
Copyright © 2013 M. SOUTINHO. Arquitectos Unipessoal, Lda. All Rights Reserved.
Designed by
NOEMA. Samuel Pinto + Marta Soutinho
.
Projectos
Atelier
Habitação Multifamiliar
Equipamento
Indústria
Planeamento
Perfil
Divulgação
Contactos
Habitação Unifamiliar
Conjuntos Habitacionais
Desenho Interior
Remodelação