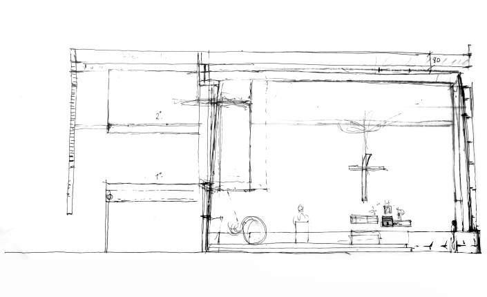
/ IGREJA DE GIÃO

cliente
FÁBRICA DA IGREJA PAROQUIAL DE GIÃO | OLIVEIRA LEITE
local GIÃO, SANTA MARIA DA FEIRA
data 2012. EM CONSTRUÇÃO.
+

Copyright © 2013 M. SOUTINHO. Arquitectos Unipessoal, Lda. All Rights Reserved.

Designed by NOEMA. Samuel Pinto + Marta Soutinho



.
Projectos



Atelier
Habitação Multifamiliar
Equipamento
Indústria

Planeamento
Perfil
Divulgação

Contactos
Habitação Unifamiliar
Conjuntos Habitacionais
Desenho Interior
Remodelação